3D 도면 요청 가이드

아키스케치 3D 도면 제작 서비스 안내

  • 아키스케치에서는 1인당 1개의 도면을 제작해 드립니다.

  • 치수가 포함된 도면 이미지가 필요합니다.

  • 제작 기간은 최대 10영업일까지 소요될 수 있으며, 평균적으로 2~7일 정도 걸립니다.

    • 접수된 도면 수에 따라 기간은 달라질 수 있습니다.

  • 완료되면 접수하신 채팅방을 통해 안내드립니다.

아래 순서를 참고하여 도면 제작을 요청해 주세요!

  • 치수가 포함된 도면 이미지를 준비해 주세요. (jpg, png, pdf)

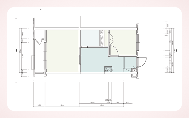
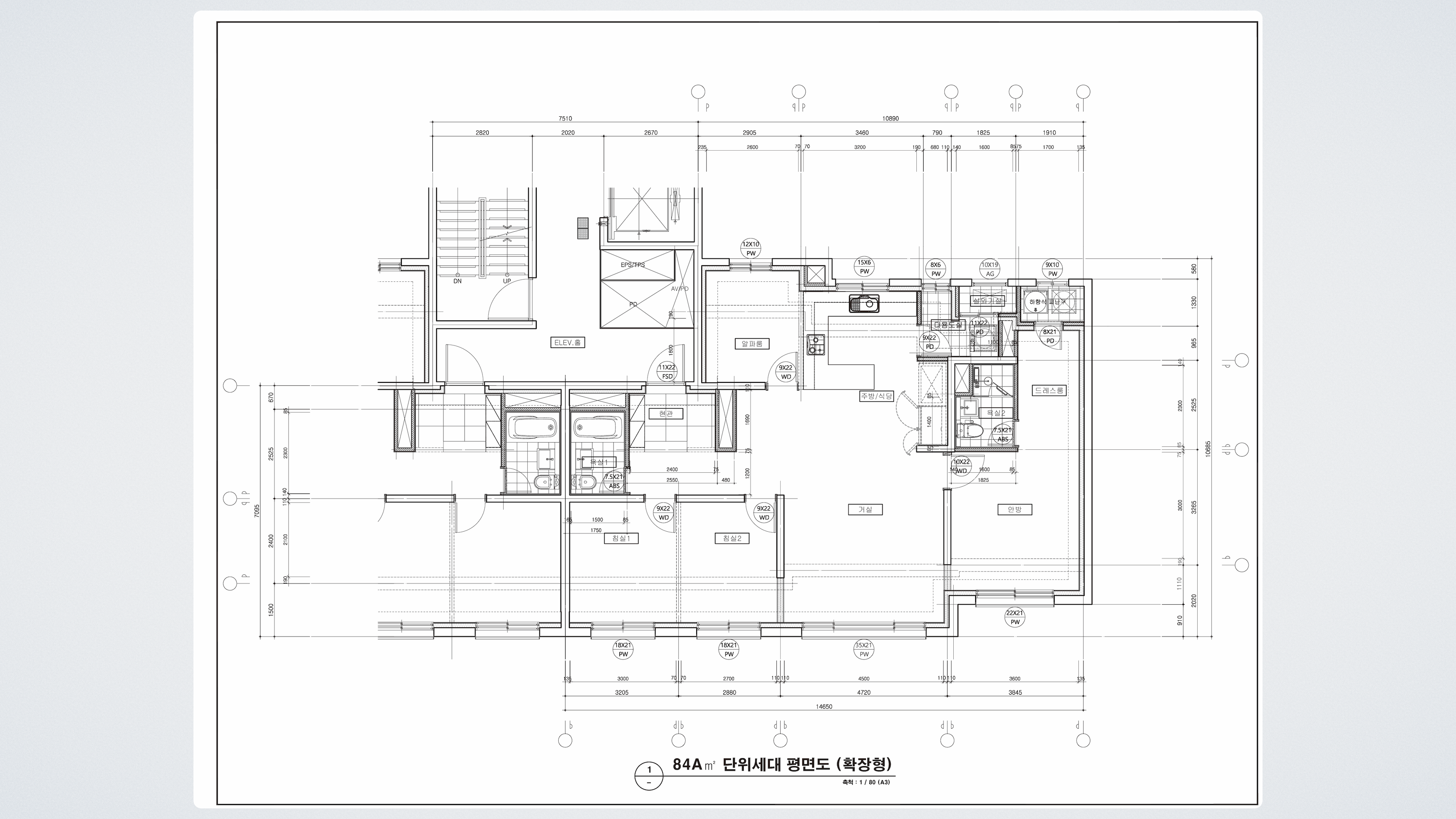
승인된 도면 예시

이미지가 선명하고 치수가 포함된 경우

이미지가 선명하고 치수가 포함된 경우

반려된 도면 예시

❌ 치수가 없는 경우

❌ 화질이 좋지 않아 숫자 판별이 어려운 경우

❌ 평면도가 아닌 입체 도면

  • 아키스케치 건물 정보는 네이버 부동산을 기준으로 관리하고 있어요!

  • 네이버 부동산 (https://land.naver.com-105zg9y/) 에서 우리집을 검색해서 정보를 확인해 주세요.

확인해야 할 정보

  1. 주소

  2. 건물명

  3. 공급/전용 면적

  • 아키스케치 고객센터(채널톡)에서 도면 업로드 요청 버튼을 통해서 접수해 주세요.

아키스케치 채널톡 → 새 문의하기 → 도면 업로드 요청

입력 시 주의 사항

평형 타입 : A/B/C 등 여러 개의 타입이 있는 경우, 숫자 뒤에 반드시 타입을 표시해 주세요.

면적 : 공급/전용 면적은 소수점 2자리까지 기입해 주세요.

주소 및 건물명 : 정확한 데이터 관리를 위해 주소와 건물명을 대조하여 확인 후 등록됩니다. 주소나 건물명이 누락될 경우 확인이 어려울 수 있으니, 두 가지 정보를 모두 제출해 주세요.

※ 요청 설문폼의 정보가 부정확할 경우, 반려되어 제작 기간이 지연될 수 있습니다. 따라서 반드시 가이드를 확인하고 정확한 정보를 입력해 주세요.

✅ 접수 승인 시

  • (영업일 기준) 24시간 내 답장이 없으면 정상적으로 접수가 됐다는 뜻이니 걱정 마세요!

❌ 접수 반려 시

  • 정보가 누락 됐거나 도면 제작에 적합하지 않은 이미지일 경우, 24시간 내에 알림톡으로 정보 재요청 메세지를 발송합니다.

  • 제작 기간은 최대 10영업일까지 소요될 수 있으며, 평균적으로 2~7일 정도 걸립니다.

    • 접수된 도면 수에 따라 기간은 달라질 수 있습니다.

  • 업로드가 완료되면 아키스케치 홈페이지 우측 하단 채널톡  채팅창으로 안내드립니다.

    • 오프라인 상태가 되었을 때 문자(알림톡)으로 답변 알림을 보내드리니 요청서 제출 시 이름, 휴대폰 번호를 잘 기입해 주세요.

  • 제작된 도면은 우리집 검색하기 에서 건물명 또는 도로명 주소를 검색해서 확인할 수 있어요

네이버 부동산에 정보가 없을 경우, 개인적으로 알고 계신 정보를 입력해주세요.

  • 인터넷 블로그, 인근 부동산, 주민센터 등에서 평면도를 구하시는 방법이 있습니다.

  • 직접 실측해서 그린 도면도 제출이 가능합니다. (다만 모든 벽의 치수 정보가 있어야 해요!)

현재 아키스케치는 1인당 1개의 도면을 무상으로 제작해드리고 있습니다. 따라서 도면 요청 이력이 있는 경우, 추가 신청이 제한될 수 있습니다.

도면 이미지를 기반으로 제작되므로 실제 공간과 차이가 있을 수 있습니다. 또한, 도면 구조 그대로 제작되기 때문에 유상 옵션과 같은 세부 요소는 반영이 어렵습니다.

업로드 완료 후, 에디터에서 직접 구조를 수정하여 활용하시는 것을 권장드립니다.

  • 아파트/오피스텔/빌라 등의 주거공간만 요청이 가능합니다. 상업공간은 도면 그리는 법을 참고해주세요!

  • 개인 주택은 다른 유저에게도 도면이 전체 공개가 되니, 이 점 참고바랍니다.

도면은 제공해주신 이미지의 방향대로 제작됩니다. 원하는 방향으로 변경하고 싶다면 아래 두 가지 방법을 참고해 주세요.

  1. 도면을 불러오기 전 좌우반전 / 상하반전 설정하기

  1. 에디터 상단 → 공구 모양 아이콘 클릭 → 도면 반전하기

네 가능합니다. 다만, 복층은 아래 이미지처럼 제작되고 있어요. 계단 형태 없이 업로드 되는 점 참고바랍니다.


👉 도면 요청하러 가기 (채널톡)